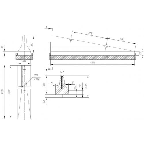
12 МД

Чертеж изделия:
Характеристики изделия:
ПараметрЗначение
длина4026 мм
ширина610 мм
высота1070 мм
масса5000 кг
нормативный документТУ 5899-002-61548960-2010

12 МД  Блоки концевые парапетного двухстороннего ограждения мостовой группы по ТУ 5899-002-61548960-2010.