ПУА 32
Характеристики изделия:
| Параметр | Значение |
|---|---|
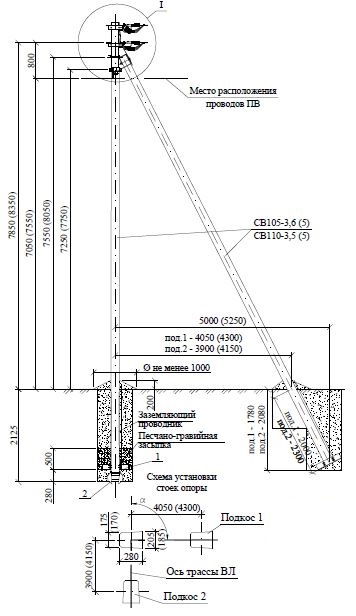
| длина | 9975 мм |
| ширина | 205 мм |
| высота | 280 мм |
| масса | 1175 кг |
| нормативный документ | Шифр 26.0085 |
Цена:
Рассчитать стоимостьПУА 32 Переходные угловые анкерные двухцепные опоры Шифр 26.0085.
| Параметр | Значение |
|---|---|
| длина | 9975 мм |
| ширина | 205 мм |
| высота | 280 мм |
| масса | 1175 кг |
| нормативный документ | Шифр 26.0085 |
ПУА 32 Переходные угловые анкерные двухцепные опоры Шифр 26.0085.