ФЦ-3

Чертеж изделия:
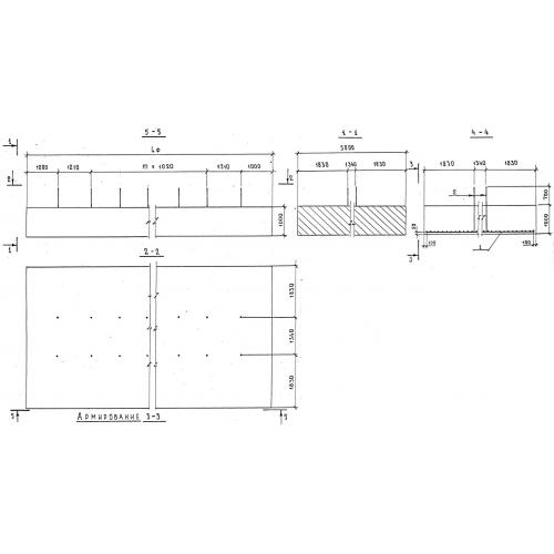
Характеристики изделия:
ПараметрЗначение
длина9520 мм
ширина5000 мм
высота1700 мм
масса119000 кг
нормативный документСерия 3.503-23

ФЦ-3 Фундаменты  Серия 3.503-23.