С 13-40
Характеристики изделия:
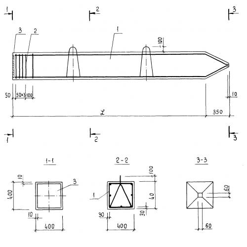
| Параметр | Значение |
|---|---|
| длина | 13350 мм |
| ширина | 400 мм |
| высота | 400 мм |
| вес | 5250 кг |
| серия | 3.015-5/86 |
Цена:
Рассчитать стоимостьС 13-40 Сваи прямоугольного сечения по серии 3.015-5/86.
| Параметр | Значение |
|---|---|
| длина | 13350 мм |
| ширина | 400 мм |
| высота | 400 мм |
| вес | 5250 кг |
| серия | 3.015-5/86 |
С 13-40 Сваи прямоугольного сечения по серии 3.015-5/86.
