К 14
Характеристики изделия:
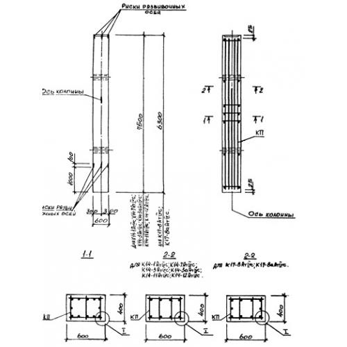
| Параметр | Значение |
|---|---|
| длина | 7500 мм |
| ширина | 600 мм |
| высота | 400 мм |
| масса | 4500 кг |
| нормативный документ | Серия 3.015-3/92 |
Цена:
Рассчитать стоимостьК 14 Колонны Серия 3.015-3/92.
| Параметр | Значение |
|---|---|
| длина | 7500 мм |
| ширина | 600 мм |
| высота | 400 мм |
| масса | 4500 кг |
| нормативный документ | Серия 3.015-3/92 |
К 14 Колонны Серия 3.015-3/92.
