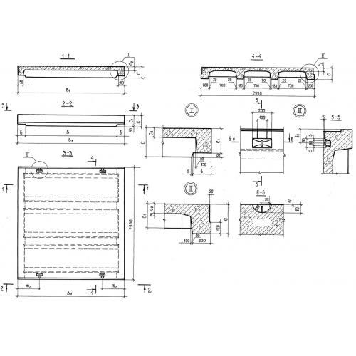
ПТ 24
Характеристики изделия:
| Параметр | Значение |
|---|---|
| длина | 2990 мм |
| ширина | 2800 мм |
| высота | 300 мм |
| масса | 3480 кг |
| нормативный документ | Серия 3.006.1-3/83 |
Цена:
Рассчитать стоимостьПТ 24 Плиты перекрытия тоннелей Серия 3.006.1-3/83.
| Параметр | Значение |
|---|---|
| длина | 2990 мм |
| ширина | 2800 мм |
| высота | 300 мм |
| масса | 3480 кг |
| нормативный документ | Серия 3.006.1-3/83 |
ПТ 24 Плиты перекрытия тоннелей Серия 3.006.1-3/83.
