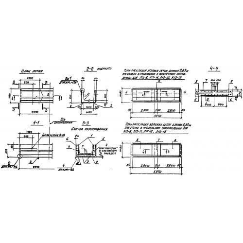
Л 12

Чертеж изделия:
Характеристики изделия:
ПараметрЗначение
длина5970 мм
ширина1480 мм
высота1010 мм
масса4800 кг
нормативный документСерия 3.006.1-2/82

Л 12  Лотки теплотрасс Серия 3.006.1-2/82.