Л 11
Характеристики изделия:
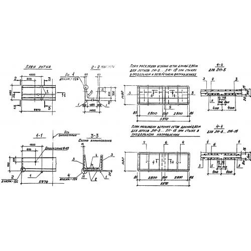
| Параметр | Значение |
|---|---|
| длина | 5970 мм |
| ширина | 1480 мм |
| высота | 700 мм |
| масса | 3600 кг |
| нормативный документ | Серия 3.006.1-2/82 |
Цена:
Рассчитать стоимостьЛ 11 Лотки теплотрасс Серия 3.006.1-2/82.
| Параметр | Значение |
|---|---|
| длина | 5970 мм |
| ширина | 1480 мм |
| высота | 700 мм |
| масса | 3600 кг |
| нормативный документ | Серия 3.006.1-2/82 |
Л 11 Лотки теплотрасс Серия 3.006.1-2/82.
