П 60.12

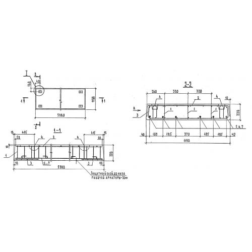
Чертеж изделия:
Характеристики изделия:
ПараметрЗначение
длина5980 мм
ширина1190 мм
высота220 мм
вес3850 кг
серия1.243.1-5

П 60.12 Панели перекрытий беспустотные по серии 1.243.1-5.