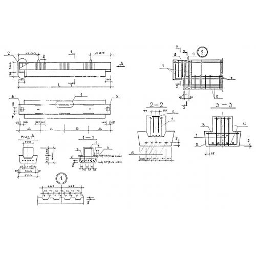
РДС 4.54

Чертеж изделия:
Характеристики изделия:
ПараметрЗначение
длина5410 мм
ширина550 мм
высота450 мм
вес2420 мм
серия1.220.1-2

РДС 4.54 Ригели покрытий по серии 1.220.1-2.