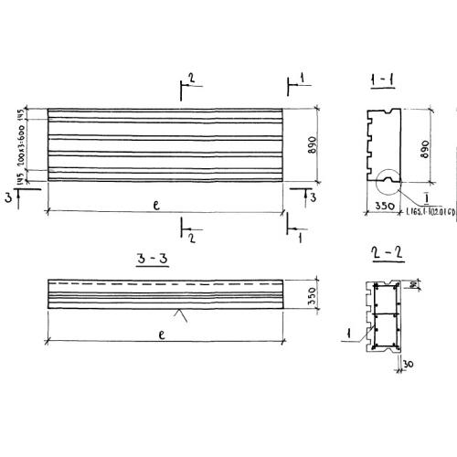
ПВ 48.9.35

Чертеж изделия:
Характеристики изделия:
ПараметрЗначение
длина4770 мм
ширина890 мм
высота350 мм
вес1040 кг
серия1.165.1-10

ПВ 48.9.35 Вентилируемые панели покрытия по серии 1.165.1-10.