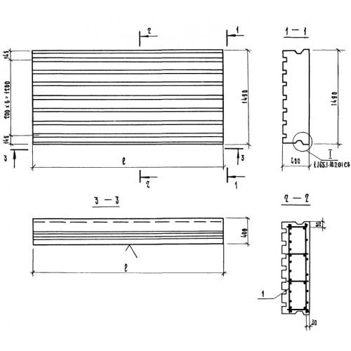
ПВ 42.15.40

Чертеж изделия:
Характеристики изделия:
ПараметрЗначение
длина4170 мм
ширина1490 мм
высота400 мм
вес1770 кг
серия1.165.1-10

ПВ 42.15.40 Вентилируемые панели покрытия по серии 1.165.1-10.