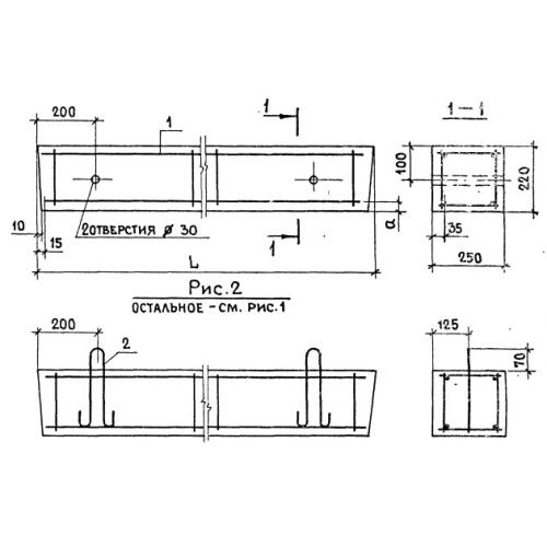
БУ 24

Чертеж изделия:
Характеристики изделия:
ПараметрЗначение
длина2450 мм
ширина250 мм
высота220 мм
вес335 кг
серия1.139-1

БУ 24 Перемычки брусковые усиленные по серии 1.139-1.