СБ 5.1-14.24.4-п-1

Чертеж изделия:
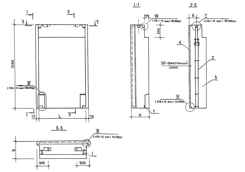
Характеристики изделия:
ПараметрЗначение
длина1415 мм
ширина400 мм
высота2380 мм
масса2068 кг
нормативный документСерия 1.138.1-12

Серия 1.138.1-12

СБ – стеновые блоки наружных стен, тип блока 5 – парапетный блок.