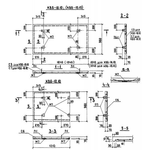
КВБ 15.10
Характеристики изделия:
| Параметр | Значение |
|---|---|
| длина | 1540 мм |
| ширина | 980 мм |
| высота | 70 мм |
| вес | 270 кг |
| серия | 1.134-3 |
Цена:
Рассчитать стоимостьКВБ 15.10 Крышки вентиляционного блока по серии 1.134-3.
| Параметр | Значение |
|---|---|
| длина | 1540 мм |
| ширина | 980 мм |
| высота | 70 мм |
| вес | 270 кг |
| серия | 1.134-3 |
КВБ 15.10 Крышки вентиляционного блока по серии 1.134-3.
