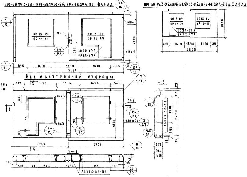
НР5-58.29.4-2б

Чертеж изделия:
Характеристики изделия:
ПараметрЗначение
Длина5800 мм
Ширина400 мм
Высота2900 мм
Масса6160 кг
Нормативный документСерия 1.132-1

НР5-58.29.4-2б   Наружная стеновая панель рядовая по Серии 1.132-1.