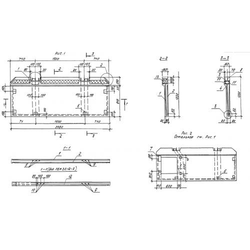
ПБК 30.12
Характеристики изделия:
| Параметр | Значение |
|---|---|
| длина | 2980 мм |
| ширина | 1230 мм |
| высота | 100 мм |
| вес | 850 кг |
| серия | 1.100.1-7 |
Цена:
Рассчитать стоимостьПБК 30.12 Плиты балконные плоские сплошные консольные по серии 1.100.1-7.
| Параметр | Значение |
|---|---|
| длина | 2980 мм |
| ширина | 1230 мм |
| высота | 100 мм |
| вес | 850 кг |
| серия | 1.100.1-7 |
ПБК 30.12 Плиты балконные плоские сплошные консольные по серии 1.100.1-7.
.jpg)