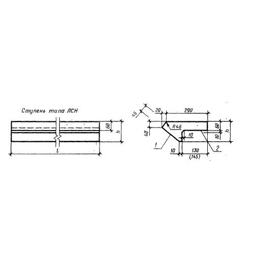
ЛСН 14

Чертеж изделия:
Характеристики изделия:
ПараметрЗначение
длина1350 мм
ширина290 мм
высота124 мм
вес78 кг
серия1.055.1-1

ЛСН 14 Ступени нижние фризовые по серии  1.055.1-1.