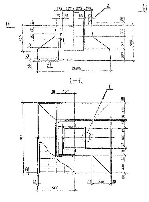
Ф 18

Чертеж изделия:
Характеристики изделия:
ПараметрЗначение
длина1800 мм
ширина1800 мм
высота1050 мм
масса4000 кг
нормативный документСерия 1.020-1

Ф 18  Фундаменты Серия 1.020-1.