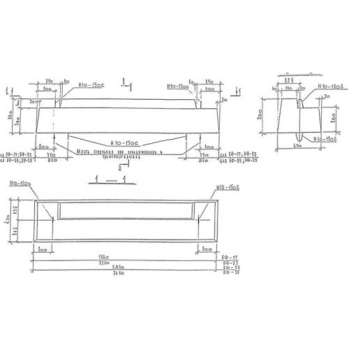
БФ 23

Чертеж изделия:
Характеристики изделия:
ПараметрЗначение
длина2260 мм
ширина470 мм
высота380 мм
масса800 кг
нормативный документАльбом РС 1251-93

БФ 23 Балки фундаментные Альбом РС 1251-93.