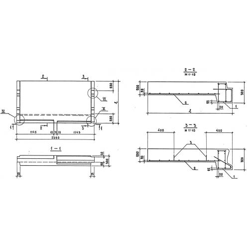
1ЛП 24.16 лестничные площадки плоские

Чертеж изделия:
Характеристики изделия:
ПараметрЗначение
длина2380 мм
ширина1600 мм
высота320 мм
масса1950 кг
нормативный документГОСТ 9818-85

1ЛП 24.16  Лестничные площадки плоские ГОСТ 9818-85.